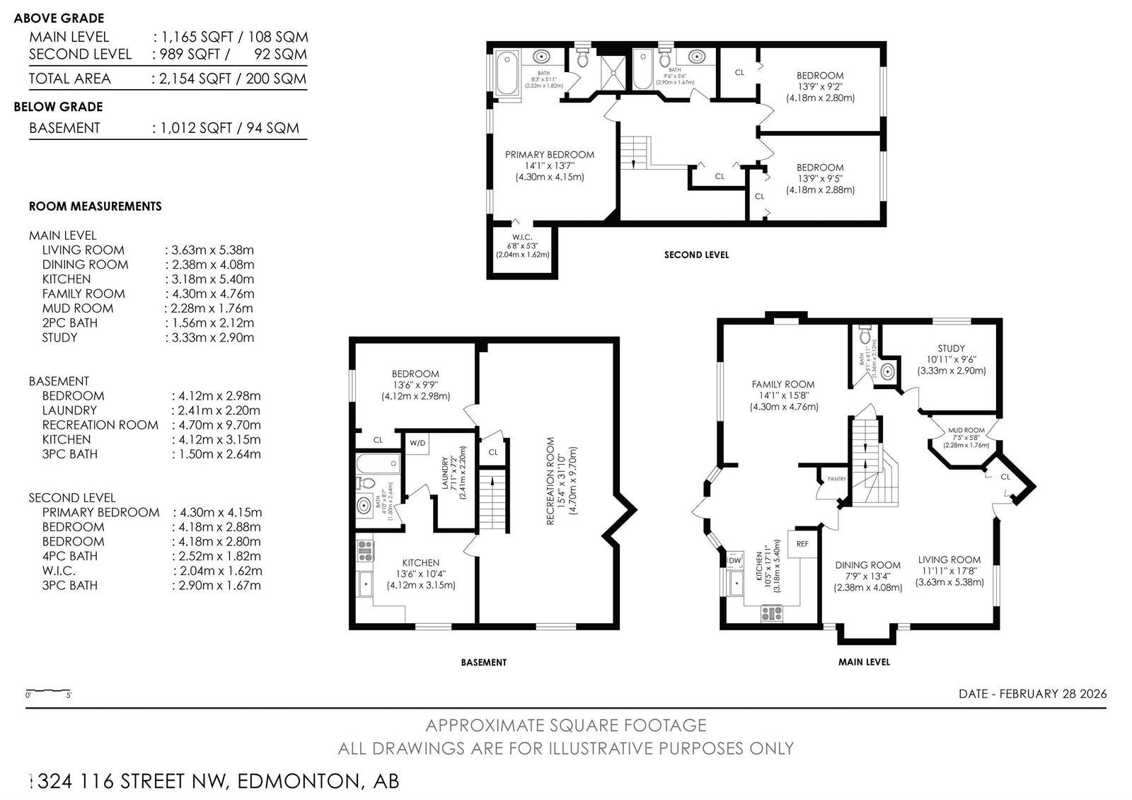
TURNKEY HOME IN SOUGHT AFTER TWIN BROOKS! This immaculate 4 bed, 3.5 bath home has seen a plethora of upgrades throughout. Boasting over 3,100 sqft of living space, this home features new vinyl windows (2025), newer roof shingles (2022), new furnace with turbo roof ventilation (2025), and NO POLY B PLUMBING! You're first greeted to an open living room flooded with natural light, this leads you into the kitchen with beautiful quartz countertops and upgraded SS appliances, you are then treated to a second private living room with a gas fireplace, offering that comforting and cozy vibe to your home! You can then head upstairs to experience new luxury laminate flooring throughout the second floor. This floor boasts a spacious master suite with a walk-in closet, shower, and a jetted soaker tub! Near transit, parks, and the highly rated George P. Nicholson School, this home provides peace, convenience, and no stress for any buyer looking to just move their things in and enjoy!
Address
1324 116 ST NW
List Price
$659,000
Property Type
Residential
Type of Dwelling
Detached Single Family
Style of Home
2 Storey
Transaction Type
Sale
Area
Edmonton
Sub-Area
Twin Brooks
Bedrooms
4
Bathrooms
4
Half Bathrooms
1
Floor Area
2,153 Sq. Ft.
Lot Size
4754.85 Sq. Ft.
Lot Shape
Rectangular
Year Built
1997
MLS® Number
E4480244
Listing Brokerage
REMAX River City
Basement Area
Full, Finished
Postal Code
T6J 7B3
Zoning
Zone 16
Parking
Double Garage Attached
Parking Places (Total)
2
Community Features
Deck, Detectors Smoke, Front Porch, See Remarks
Exterior Features
Fenced, Landscaped, No Back Lane, Playground Nearby, Public Transportation, Schools, Shopping Nearby
Interior Features
ensuite bathroom
Heat Type
Forced Air-1, Natural Gas
Construction Materials
Wood, Stucco
Direction Faces
Northeast
Foundation Details
Concrete Perimeter
Garage Type
Yes
Roof
Asphalt Shingles
Access To Property
Paved























































